pull-icon
logo-mobile
logo-mobile

Гость

Гостевой доступ

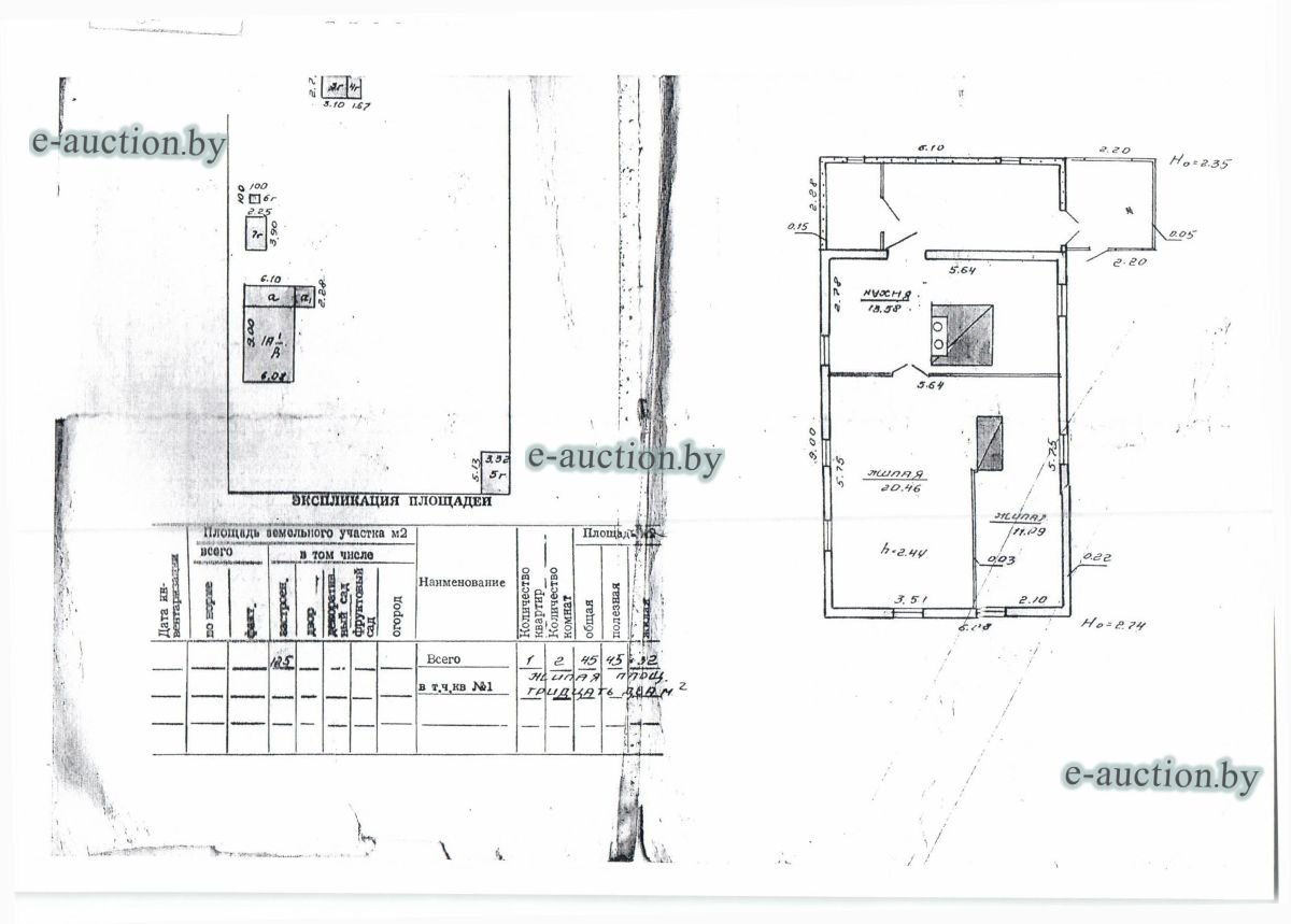
2/3 доли в праве собственности на жилой дом в г. Витебске, площадью 45.2 м²

Информация о предмете торгов
Местоположение имущества г. Витебск, ул. Ореховская, 73
Площадь общая (кв.м.) 45.2
Описание Сведения о капитальном строении из ЕГРНИ:
Наименование: жилой дом;
Назначение: здание одноквартирного жилого дома;
Составные части и принадлежности: с сенями, полуподвалом, баней, предбанником, гаражом, уборной, сараем.
Общая долевая собственность.

Расположено на земельном участке с кад. № 240100000003004835 площадью 0.0965 га (право пожизненного наследуемого владения).
Целевое назначение земельного участка: земельный участок для размещения объектов усадебной застройки (строительства и обслуживания жилого дома)
Назначение земельного участка в соответствии с единой классификацией назначения объектов недвижимого имущества: земельный участок для размещения объектов усадебной застройки (строительства и обслуживания одноквартирного (блокированного) жилого дома, обслуживания зарегистрированной организацией по государственной регистрации недвижимого имущества, прав на него и сделок с ним квартиры в блокированном жилом доме).
Ограничения (обременения) прав в использовании земель, находящихся в охранных зонах линий электропередачи напряжением до 1000 В, площадь 0.0006 га.
Инвентарный номер 200/C-24029
Должник: Масловский Виталий Васильевич
Обременения: Запрет совершения регистрационных действий судебного исполнителя.
Осмотр объекта
Участник электронных торгов обязан до начала электронных торгов осмотреть предмет торгов ( п.2.4.3 Регламента)
Контактное лицо: Специалисты по продаже
Контакты: +375292117981
Организатор торгов
Наименование Республиканское унитарное предприятие по оказанию услуг «БелЮрОбеспечение». Витебский филиал
УНП организации 192821149
Контакты организатора аукциона +375292117981, 8 (0212) 48 01 00 (приёмная)
Адрес организатора аукциона 210038, г. Витебск, ул. Терешковой, 9
Email организатора аукциона vitebsk@e-auction.by
Орган принудительного исполнения
Наименование ОПИ Октябрьского р-на г. Витебска
УНП 300002505
Адрес 210001, г. Витебск, ул. Кирова, 16
Телефон 8 (0212) 61-62-97
Email opi203@minjust.by
Реквизиты ОПИ Октябрьского р-на г. Витебска, УНП: 300002505, р/c BY05AKBB36429030002722000000 в ОАО «АСБ Беларусбанк», БИК AKBBBY2X
Судебный исполнитель
Ф.И.О. Барковская Ирина Сергеевна
Телефон +375333995629

Вы оказались единственными учатником аукциона

Вам предоставляется возможнсть преобрести лот №2.2026.03.00059 по начальной цене 15 800.00 BYN плюс 5%.

Итоговая стоимость имущества составит: 16 590.00 BYN

Согласен приобрести лот Не согласен приобрести лот

Вам предложено преобрести имущество

В связи с признанием торгов несостоявшимися ввиду неоплаты победителем стоимости лота предлагаем в течение 5 рабочих дней принять решение о приобретении лота №2.2026.03.00059 по вашей последней ставке.

Итоговая стоимость имущества составит: 0.00 BYN

Согласен приобрести лот Не согласен приобрести лот


Для участия в аукционе вам нужно оплатить задаток в размере 1 580.00 BYN для участия в аукционе.


Внимание! Вы действительно хотите установить ставку равную 15 000,03 BYN значительно превышающую по отношению к предыдущей на

+10 000,00 BYN


Внимание! Вы действительно хотите установить ставку равную 15 000,03 BYN, значительно превышающую по отношению к предыдущей на

+10 000,00 BYN

Ставка значительно превышает предыдущую ставку. Для подтверждения ставки подтвердите согласие на установку и введите слово "СОГЛАСЕН" в поле ниже:




Забыли пароль? Восcтановить доступ к площадке.


Уважаемый пользователь! В соответствии с Законом Республики Беларусь «О защите персональных данных» для продолжения работы на интернет-сайте e- auction.by просим ознакомиться с Пользовательским соглашением интернет-сайта e-auction.by и выразить согласие на обработку информации о пользователе, в том числе персональных данных.


Для восcтановления доступа вам нужно ввести зарегистрированный почтовый адрес. На указанный вами почтовый адрес будет выслана уникальная ссылка для создания нового пароля.

Вспомнили? Авторизация