pull-icon
logo-mobile
logo-mobile

Гость

Гостевой доступ

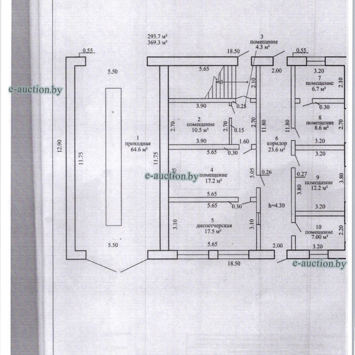
Здание контрольно-пропускного пункта в п. Муляровка (Петриковский район), площадью 369.3м²

Информация о предмете торгов
Местоположение имущества Гомельская область, Петриковский р-н, п. Муляровка, ул. Рабочая, д.1Г, корп. 5
Площадь общая (кв.м.) 369.3
Описание Сведения о капитальном строении:
Наименование: контрольно-пропускной пункт
Назначение: Здание административно-хозяйственное
Составные части и принадлежности: сведения отсутствуют

Сведения о земельном участке:
Кадастровый номер земельного участка, на котором расположено капитальное строение: 324386400001000118 площадью 3.4005 га (право постоянного пользования)

Отдельный земельный участок для обслуживания строения не выделен.
Инвентарный номер 335/C-7847
Должник: Открытое акционерное общество "Петриковский агросервис"
Осмотр объекта
Участник электронных торгов обязан до начала электронных торгов осмотреть предмет торгов ( п.2.4.3 Регламента)
Контактное лицо: Специалисты по продаже
Контакты: +375445293915
Организатор торгов
Наименование Гомельский филиал республиканского унитарного предприятия по оказанию услуг "БелЮрОбеспечение"
УНП организации 192821149
Контакты организатора аукциона +375445293915; +375445293912
Адрес организатора аукциона 246007, г. Гомель, ул. Троллейбусная, 6
Email организатора аукциона gomel@e-auction.by
Орган принудительного исполнения
Наименование ОПИ УПИ главного управления юстиции Гомельского облисполкома
УНП 400062755
Адрес 246001, г. Гомель, ул. Фрунзе, 6
Телефон 8 (0232) 510347
Email upi301@minjust.by
Реквизиты ОПИ УПИ главного управления юстиции Гомельского облисполкома, УНП: 400062755, р/c BY37AKBB36429000010333000000 в ОАО «АСБ Беларусбанк», БИК AKBBBY2X
Судебный исполнитель
Ф.И.О. Савочкина Евгения Юрьевна
Телефон +375445290952

Вы оказались единственными учатником аукциона

Вам предоставляется возможнсть преобрести лот №3.2026.05.00043 по начальной цене 39 000.00 BYN плюс 5%.

Итоговая стоимость имущества составит: 40 950.00 BYN

Согласен приобрести лот Не согласен приобрести лот

Вам предложено преобрести имущество

В связи с признанием торгов несостоявшимися ввиду неоплаты победителем стоимости лота предлагаем в течение 5 рабочих дней принять решение о приобретении лота №3.2026.05.00043 по вашей последней ставке.

Итоговая стоимость имущества составит: 0.00 BYN

Согласен приобрести лот Не согласен приобрести лот


Для участия в аукционе вам нужно оплатить задаток в размере 3 900.00 BYN для участия в аукционе.


Внимание! Вы действительно хотите установить ставку равную 15 000,03 BYN значительно превышающую по отношению к предыдущей на

+10 000,00 BYN


Внимание! Вы действительно хотите установить ставку равную 15 000,03 BYN, значительно превышающую по отношению к предыдущей на

+10 000,00 BYN

Ставка значительно превышает предыдущую ставку. Для подтверждения ставки подтвердите согласие на установку и введите слово "СОГЛАСЕН" в поле ниже:




Забыли пароль? Восcтановить доступ к площадке.


Уважаемый пользователь! В соответствии с Законом Республики Беларусь «О защите персональных данных» для продолжения работы на интернет-сайте e- auction.by просим ознакомиться с Пользовательским соглашением интернет-сайта e-auction.by и выразить согласие на обработку информации о пользователе, в том числе персональных данных.


Для восcтановления доступа вам нужно ввести зарегистрированный почтовый адрес. На указанный вами почтовый адрес будет выслана уникальная ссылка для создания нового пароля.

Вспомнили? Авторизация