pull-icon
logo-mobile
logo-mobile

Гость

Гостевой доступ

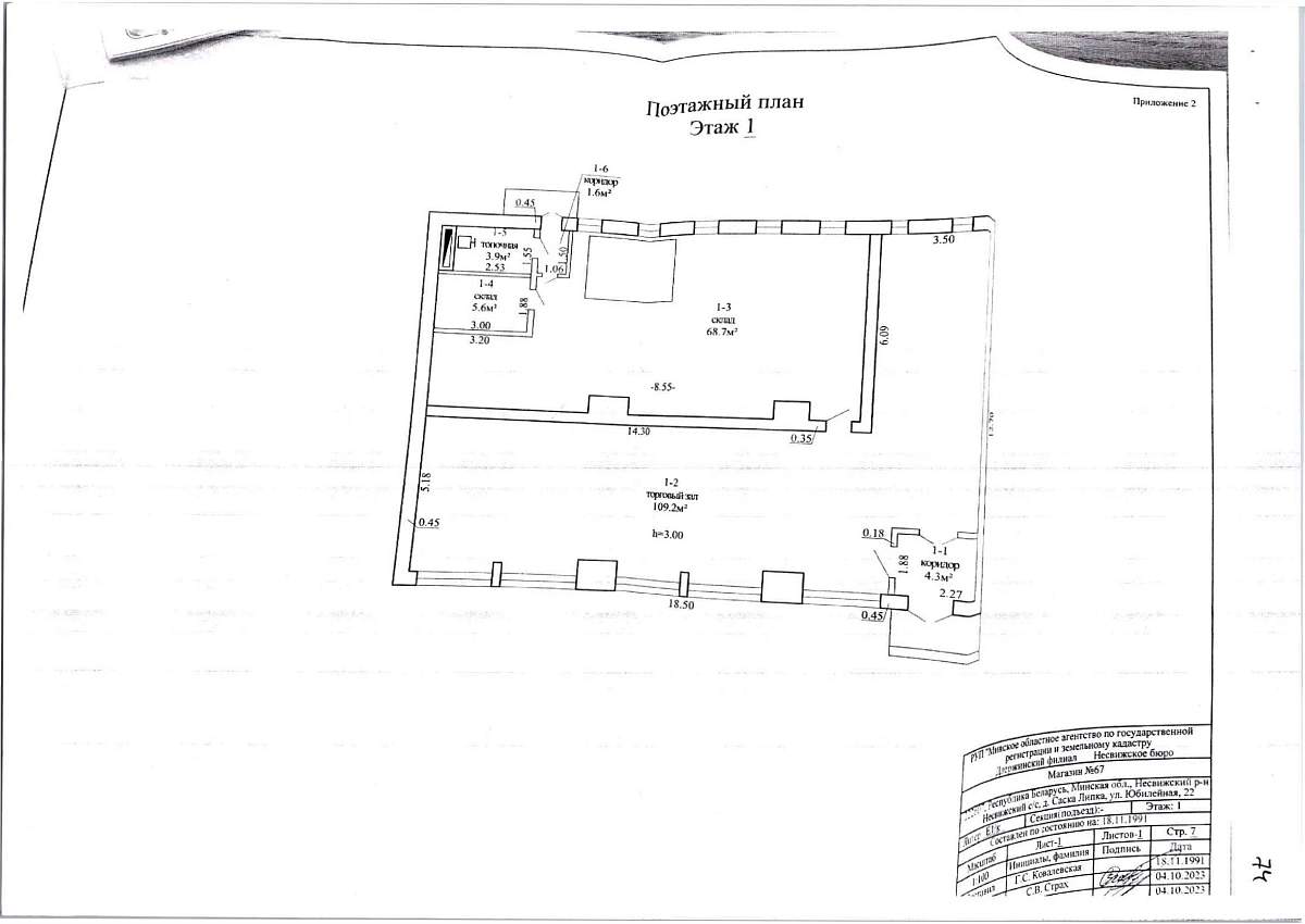
Магазин в д. Саска Липка (Несвижский район), площадью 193.3 м²

Информация о предмете торгов
Местоположение имущества Минская область, Несвижский р-н, Несвижский с/с, д. Саска Липка, ул. Юбилейная, 22
Площадь общая (кв.м.) 193.3
Описание Сведения о капитальном строении:
Наименование: магазин № 67;
Назначение: здание специализированное розничной торговли;
Составные части и принадлежности: целый одноэтажный кирпичный магазин сараем № 1, уборной № 2.
Принадлежит должнику на праве собственности.

В состав лота также входит сигнализация магазина (инв. № 2179), котел отопительный газовый, забор железобетонный.

Расположено на земельном участке с кад. № 624283505401000277 площадью 0.1532 га (право аренды).

Минским областным исполнительным комитетом в целях упорядочения дальнейшего использования объектов недвижимости, реализуемых с аукционов (электронных торгов), принято решение от 15.11.2023 № 1119.
В соответствии с решением необходимо обеспечить для случаев реализации объектов недвижимости, а именно: капитальные строения (здание, сооружения), незавершенные законсервированные и незаконсервированные капитальные строения, находящиеся в собственности Минской области, собственности ее административно - территориальных единиц, собственности хозяйственных обществ (товариществ), в уставных фондах которых более 50 процентов акций (долей) находятся в собственности Минской области и (или) ее административно-территориальных единиц, с аукционов (электронных торгов) в исполнительном производстве обязательными следующие условия:
- обеспечение безопасности и ограничение доступа на недвижимое имущество с даты подписания акта о приемке-передаче;
- использование земельного участка и объекта недвижимости в соответствии с назначением, определенным райгорисполкомами;
- поддержание надлежащего санитарного, технического состояния объекта недвижимости и земельного участка;
- срок начала и период проведения реконструкции объектов недвижимости (при необходимости ее проведения) и (или) возведения недвижимого имущества после сноса приобретенного объекта недвижимости либо сноса отдельных объектов, входящих в состав приобретенного объекта недвижимости, которые не могут быть использованы;
- срок завершения строительства незавершенных законсервированных и незаконсервированных капитальных строений.
Инвентарный номер 621/C-1029063
Должник: Несвижское районное потребительское общество
Осмотр объекта
Участник электронных торгов обязан до начала электронных торгов осмотреть предмет торгов ( п.2.4.3 Регламента)
Контактное лицо: Управление оценки и реализации имущества
Контакты: +375445293933
Организатор торгов
Наименование Республиканское унитарное предприятие по оказанию услуг «БелЮрОбеспечение»
УНП организации 192821149
Контакты организатора аукциона +375445293933
Адрес организатора аукциона 220069, г. Минск, пр-т Дзержинского, 1Б
Email организатора аукциона minsk@e-auction.by
Орган принудительного исполнения
Наименование ОПИ УПИ главного управления юстиции Минского облисполкома
УНП 600013502
Адрес 220036, г. Минск, ул. К. Либкнехта, 68
Телефон 8 (017) 343-52-00
Email upi501@minjust.by
Реквизиты ОПИ УПИ главного управления юстиции Минского облисполкома, УНП: 600013502, р/c BY84AKBB36420000002880000000 в ОАО "АСБ Беларусбанк", БИК AKBBBY2X
Судебный исполнитель
Ф.И.О. Масло Светлана Ивановна
Телефон +375445292923

Вы оказались единственными учатником аукциона

Вам предоставляется возможнсть преобрести лот №5.2025.06.00295 по начальной цене 20 920.00 BYN плюс 5%.

Итоговая стоимость имущества составит: 21 966.00 BYN

Согласен приобрести лот Не согласен приобрести лот

Вам предложено преобрести имущество

В связи с признанием торгов несостоявшимися ввиду неоплаты победителем стоимости лота предлагаем в течение 5 рабочих дней принять решение о приобретении лота №5.2025.06.00295 по вашей последней ставке.

Итоговая стоимость имущества составит: 24 790.20 BYN

Согласен приобрести лот Не согласен приобрести лот


Для участия в аукционе вам нужно оплатить задаток в размере 2 092.00 BYN для участия в аукционе.


Внимание! Вы действительно хотите установить ставку равную 15 000,03 BYN значительно превышающую по отношению к предыдущей на

+10 000,00 BYN


Внимание! Вы действительно хотите установить ставку равную 15 000,03 BYN, значительно превышающую по отношению к предыдущей на

+10 000,00 BYN

Ставка значительно превышает предыдущую ставку. Для подтверждения ставки подтвердите согласие на установку и введите слово "СОГЛАСЕН" в поле ниже:




Забыли пароль? Восcтановить доступ к площадке.


Уважаемый пользователь! В соответствии с Законом Республики Беларусь «О защите персональных данных» для продолжения работы на интернет-сайте e- auction.by просим ознакомиться с Пользовательским соглашением интернет-сайта e-auction.by и выразить согласие на обработку информации о пользователе, в том числе персональных данных.


Для восcтановления доступа вам нужно ввести зарегистрированный почтовый адрес. На указанный вами почтовый адрес будет выслана уникальная ссылка для создания нового пароля.

Вспомнили? Авторизация