pull-icon
logo-mobile
logo-mobile

Гость

Гостевой доступ

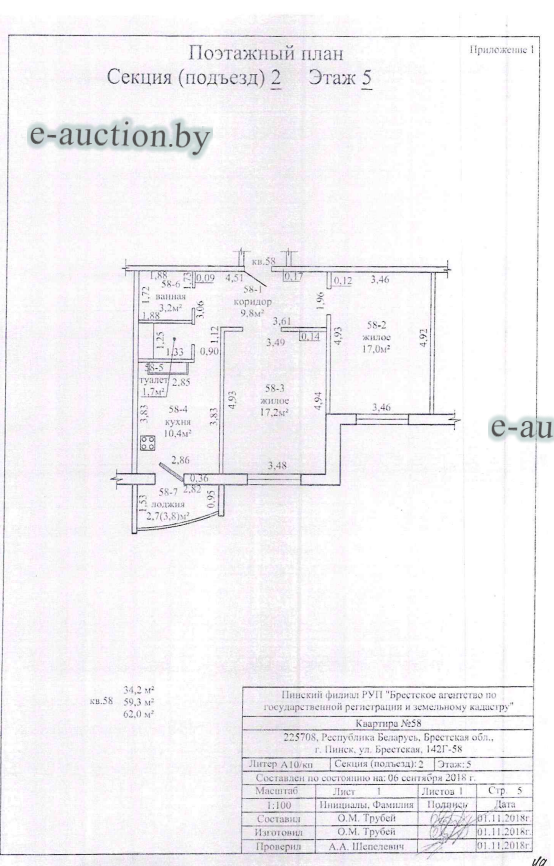
Двухкомнатная квартира в г. Пинске, площадью 59.3 м²

Информация о предмете торгов
Местоположение имущества Брестская область, г. Пинск, ул. Брестская, 142Г- 58
Площадь общая (кв.м.) 59.3
Описание Сведения об изолированном помещении или машино-месте:
Наименование: Квартира №58;
Назначение: Квартира;
Число комнат: 2;
Право собственности: Гражданин Республики Беларусь;
Примечания: Квартира состоит из двух жилых комнат, кухни, коридора, ванной, туалета, лоджии. Общая площадь по СНБ - 62,0 кв.м., жилая площадь - 34,2 кв.м.
Инвентарный номер 130/D-60823
Должник: Пацко Алексей Васильевич
Обременения: Ипотека. Запрещение продажи, ограничение дарения, обмена жилого помещения до полного погашения льготного кредита (пп.1.18 п.1 Указа Президента Республики Беларусь от 06.01.2012 № 13 "О некоторых вопросах предоставления гражданам государственной поддержки при строительстве (реконструкции) или приобретении жилых помещений"). Запрет совершения регистрационных действий судебного исполнителя. Количество зарегистрированных лиц: 1.
Осмотр объекта
Участник электронных торгов обязан до начала электронных торгов осмотреть предмет торгов ( п.2.4.3 Регламента)
Контактное лицо: Специалист по продаже
Контакты: +375445293910
Организатор торгов
Наименование Республиканское унитарное предприятие по оказанию услуг "БелЮрОбеспечение"
УНП организации 192821149
Контакты организатора аукциона +375 162 28 59 61; +375 44 529 39 10; +375 29 393 15 36
Адрес организатора аукциона 224012, г.Брест, ул. Спокойная, д. 9, пом. 11
Email организатора аукциона brest@e-auction.by
Орган принудительного исполнения
Наименование ОПИ УПИ главного управления юстиции Брестского облисполкома
УНП 200019773
Адрес 224030, г. Брест, пр-т Машерова, 6
Телефон 8 (0162) 30-16-63
Email opi101@minjust.by
Реквизиты ОПИ УПИ главного управления юстиции Брестского облисполкома, УНП: 200019773, р/c BY48AKBB36429000026751000000 в ОАО "АСБ Беларусбанк", БИК AKBBBY2X
Судебный исполнитель
Ф.И.О. Дубяга Кристина Васильевна
Телефон +375333991524

Вы оказались единственными учатником аукциона

Вам предоставляется возможнсть преобрести лот №1.2026.02.00144 по начальной цене 105 000.00 BYN плюс 5%.

Итоговая стоимость имущества составит: 110 250.00 BYN

Согласен приобрести лот Не согласен приобрести лот

Вам предложено преобрести имущество

В связи с признанием торгов несостоявшимися ввиду неоплаты победителем стоимости лота предлагаем в течение 5 рабочих дней принять решение о приобретении лота №1.2026.02.00144 по вашей последней ставке.

Итоговая стоимость имущества составит: 0.00 BYN

Согласен приобрести лот Не согласен приобрести лот


Для участия в аукционе вам нужно оплатить задаток в размере 10 500.00 BYN для участия в аукционе.


Внимание! Вы действительно хотите установить ставку равную 15 000,03 BYN значительно превышающую по отношению к предыдущей на

+10 000,00 BYN


Внимание! Вы действительно хотите установить ставку равную 15 000,03 BYN, значительно превышающую по отношению к предыдущей на

+10 000,00 BYN

Ставка значительно превышает предыдущую ставку. Для подтверждения ставки подтвердите согласие на установку и введите слово "СОГЛАСЕН" в поле ниже:




Забыли пароль? Восcтановить доступ к площадке.


Уважаемый пользователь! В соответствии с Законом Республики Беларусь «О защите персональных данных» для продолжения работы на интернет-сайте e- auction.by просим ознакомиться с Пользовательским соглашением интернет-сайта e-auction.by и выразить согласие на обработку информации о пользователе, в том числе персональных данных.


Для восcтановления доступа вам нужно ввести зарегистрированный почтовый адрес. На указанный вами почтовый адрес будет выслана уникальная ссылка для создания нового пароля.

Вспомнили? Авторизация