pull-icon
logo-mobile
logo-mobile

Гость

Гостевой доступ

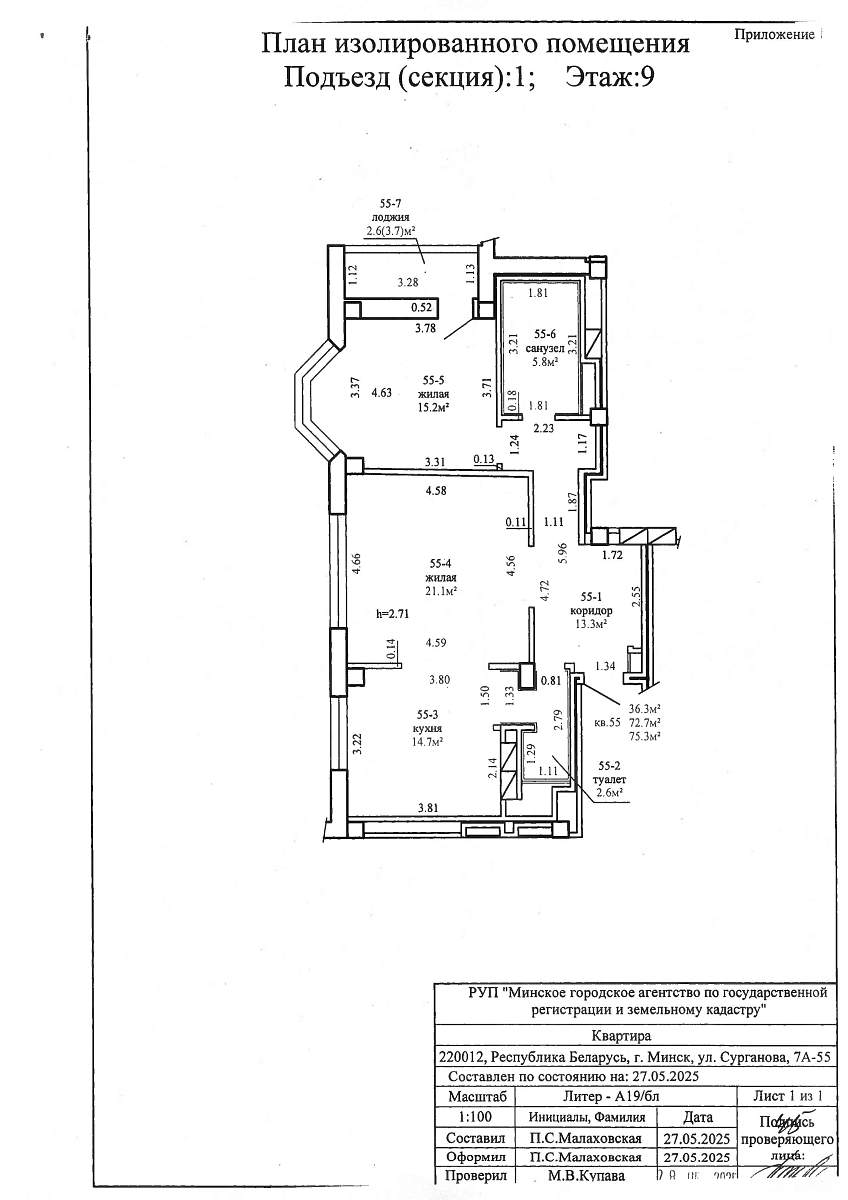
Двухкомнатная квартира в г. Минске

Информация о предмете торгов
Местоположение имущества г. Минск, ул. Сурганова, 7А-55
Количество комнат 2
Описание Сведения об изолированном помещении из ЕГРНИ:
Общая площадь (кв. м): 72.8;
Наименование: квартира 55;
Назначение: квартира.
Примечания: общая площадь квартиры по СНБ - 75.6 м², жилая площадь - 38.0 м².

Имеются несоответствия сведениям, содержащимся в ЕГРНИ, отражённые в ведомости технических характеристик (фото прилагаются).
Инвентарный номер 500/D-708127402
Должник: Сечко Светлана Васильевна
Обременения: Арест следственных органов, запрет совершения регистрационных действий судебного исполнителя. Количество зарегистрированных по месту жительства: 1.
Осмотр объекта
Участник электронных торгов обязан до начала электронных торгов осмотреть предмет торгов ( п.2.4.3 Регламента)
Контактное лицо: Управление оценки и реализации имущества
Контакты: +375445293911
Организатор торгов
Наименование Республиканское унитарное предприятие по оказанию услуг «БелЮрОбеспечение»
УНП организации 192821149
Контакты организатора аукциона +375445293911
Адрес организатора аукциона 220069, г. Минск, пр-т Дзержинского, 1Б
Email организатора аукциона minsk@e-auction.by
Орган принудительного исполнения
Наименование ОПИ Смолевичского р-на
УНП 600013502
Адрес 222201, г. Смолевичи, ул. Гавриила Тихова, 1
Телефон 8 (01776) 4-73-80
Email opi519@minjust.by
Реквизиты ОПИ Смолевичского р-на, УНП: 600013502, р/c BY13AKBB36420000020316200000 в ОАО «АСБ Беларусбанк», БИК AKBBBY2X
Судебный исполнитель
Ф.И.О. Тиньо Ирина Вячеславовна
Телефон +375445292865

Вы оказались единственными учатником аукциона

Вам предоставляется возможнсть преобрести лот №5.2025.08.00033 по начальной цене 364 000.00 BYN плюс 5%.

Итоговая стоимость имущества составит: 382 200.00 BYN

Согласен приобрести лот Не согласен приобрести лот

Вам предложено преобрести имущество

В связи с признанием торгов несостоявшимися ввиду неоплаты победителем стоимости лота предлагаем в течение 5 рабочих дней принять решение о приобретении лота №5.2025.08.00033 по вашей последней ставке.

Итоговая стоимость имущества составит: 0.00 BYN

Согласен приобрести лот Не согласен приобрести лот


Для участия в аукционе вам нужно оплатить задаток в размере 36 400.00 BYN для участия в аукционе.


Внимание! Вы действительно хотите установить ставку равную 15 000,03 BYN значительно превышающую по отношению к предыдущей на

+10 000,00 BYN


Внимание! Вы действительно хотите установить ставку равную 15 000,03 BYN, значительно превышающую по отношению к предыдущей на

+10 000,00 BYN

Ставка значительно превышает предыдущую ставку. Для подтверждения ставки подтвердите согласие на установку и введите слово "СОГЛАСЕН" в поле ниже:




Забыли пароль? Восcтановить доступ к площадке.


Уважаемый пользователь! В соответствии с Законом Республики Беларусь «О защите персональных данных» для продолжения работы на интернет-сайте e- auction.by просим ознакомиться с Пользовательским соглашением интернет-сайта e-auction.by и выразить согласие на обработку информации о пользователе, в том числе персональных данных.


Для восcтановления доступа вам нужно ввести зарегистрированный почтовый адрес. На указанный вами почтовый адрес будет выслана уникальная ссылка для создания нового пароля.

Вспомнили? Авторизация