pull-icon
logo-mobile
logo-mobile

Гость

Гостевой доступ

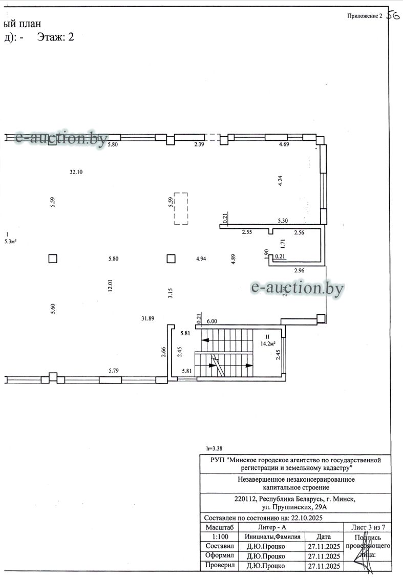
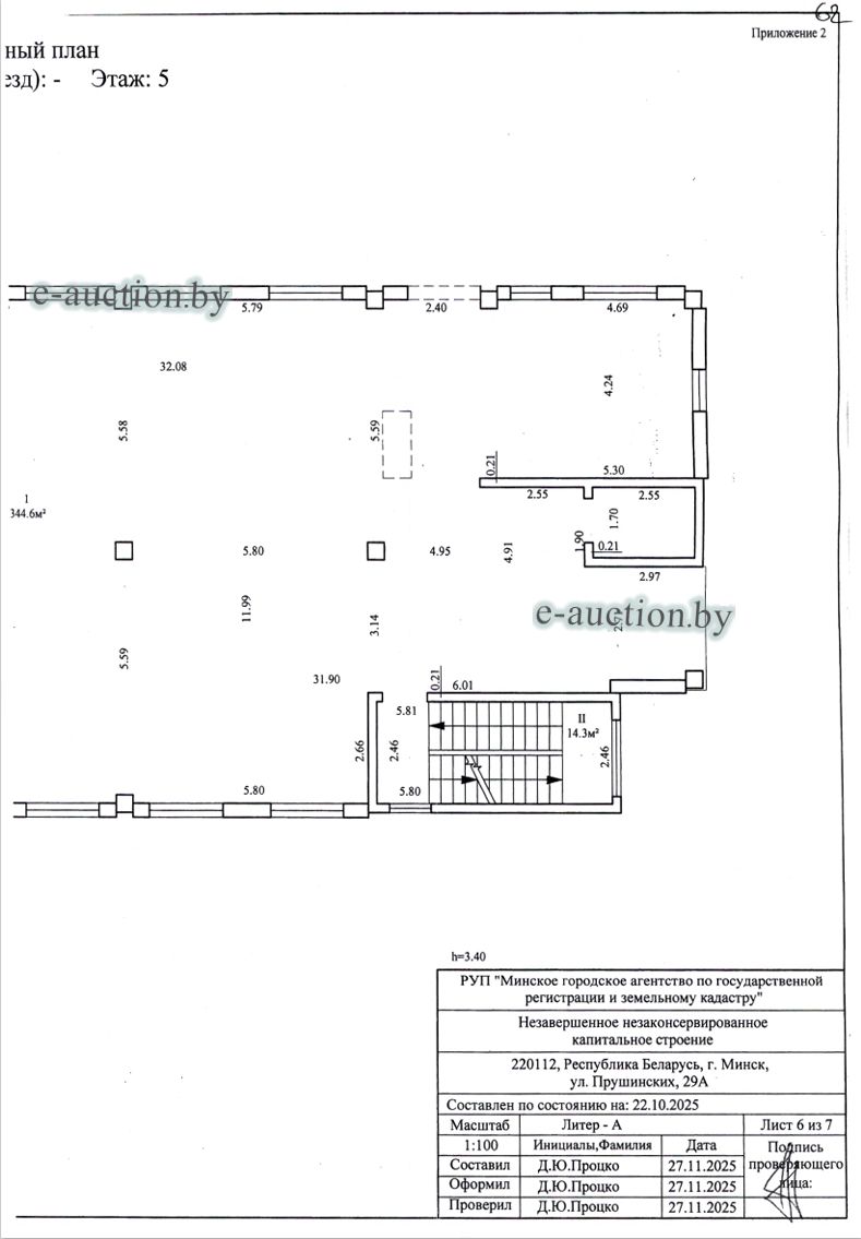
Незавершенное законсервированное капитальное строение в г. Минске

Информация о предмете торгов
Местоположение имущества г. Минск, ул. Прушинских, 29А
Описание Сведения о капитальном строении из ЕГРНИ:
Общая площадь (протяженность): 0.0;
Наименование: Незавершенное законсервированное капитальное строение;
Назначение: Здание неустановленного назначения;
Составные части и принадлежности: А-Незавершенное законсервированное капитальное строение;
Право собственности: Общество с ограниченной ответственностью "Интер-Офис".

Кадастровый номер земельного участка, на котором расположено капитальное строение: 500000000003005461, площадью 0.3283 га (Право аренды);
Целевое назначение земельного участка: Для строительства объекта "Офисы с объектами бизнеса для обслуживания населения по ул. Прушинских";
Назначение земельного участка в соответствии с единой классификацией назначения объектов недвижимого имущества: Земельный участок для размещения объектов иного назначения.

*Фактическая готовность не соответствует готовности на момент консервации объекта.
Инвентарный номер 500/U-13014685
Должник: Общество с ограниченной ответственностью "Интер-Офис"
Обременения: Запрет совершения регистрационных действий судебного исполнителя.
Осмотр объекта
Участник электронных торгов обязан до начала электронных торгов осмотреть предмет торгов ( п.2.4.3 Регламента)
Контактное лицо: Управление оценки и реализации имущества
Контакты: +375445293933
Организатор торгов
Наименование Республиканское унитарное предприятие по оказанию услуг "БелЮрОбеспечение"
УНП организации УНП 192821149
Контакты организатора аукциона +375445293933
Адрес организатора аукциона 220069, г. Минск, пр-т Дзержинского, 1Б
Email организатора аукциона minsk@e-auction.by
Орган принудительного исполнения
Наименование ОПИ УПИ главного управления юстиции Мингорисполкома
УНП 100223493
Адрес 220004, г. Минск, ул. Коллекторная, 3
Телефон +375 (17) 363-11-44
Email upi701@minjust.by
Реквизиты ОПИ УПИ главного управления юстиции Мингорисполкома, УНП: 100223493, р/c BY56AKBB36429000024450000000 в ОАО «АСБ Беларусбанк», БИК AKBBBY2X
Судебный исполнитель
Ф.И.О. Петрукович Алексей Константинович
Телефон +375445292509

Вы оказались единственными учатником аукциона

Вам предоставляется возможнсть преобрести лот №7.2026.05.00057 по начальной цене 2 980 000.00 BYN плюс 5%.

Итоговая стоимость имущества составит: 3 129 000.00 BYN

Согласен приобрести лот Не согласен приобрести лот

Вам предложено преобрести имущество

В связи с признанием торгов несостоявшимися ввиду неоплаты победителем стоимости лота предлагаем в течение 5 рабочих дней принять решение о приобретении лота №7.2026.05.00057 по вашей последней ставке.

Итоговая стоимость имущества составит: 0.00 BYN

Согласен приобрести лот Не согласен приобрести лот


Для участия в аукционе вам нужно оплатить задаток в размере 298 000.00 BYN для участия в аукционе.


Внимание! Вы действительно хотите установить ставку равную 15 000,03 BYN значительно превышающую по отношению к предыдущей на

+10 000,00 BYN


Внимание! Вы действительно хотите установить ставку равную 15 000,03 BYN, значительно превышающую по отношению к предыдущей на

+10 000,00 BYN

Ставка значительно превышает предыдущую ставку. Для подтверждения ставки подтвердите согласие на установку и введите слово "СОГЛАСЕН" в поле ниже:




Забыли пароль? Восcтановить доступ к площадке.


Уважаемый пользователь! В соответствии с Законом Республики Беларусь «О защите персональных данных» для продолжения работы на интернет-сайте e- auction.by просим ознакомиться с Пользовательским соглашением интернет-сайта e-auction.by и выразить согласие на обработку информации о пользователе, в том числе персональных данных.


Для восcтановления доступа вам нужно ввести зарегистрированный почтовый адрес. На указанный вами почтовый адрес будет выслана уникальная ссылка для создания нового пароля.

Вспомнили? Авторизация