pull-icon
logo-mobile
logo-mobile

Гость

Гостевой доступ

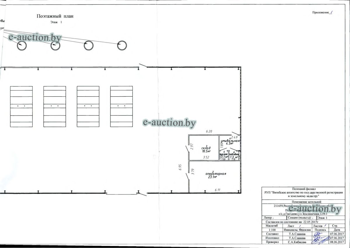
Помещение котельной в д. Гвоздово (Полоцкий район), площадью 965.4 м²

Информация о предмете торгов
Местоположение имущества Витебская область, Полоцкий р-н, Боровухский с/с, д. Гвоздово, ул. Земляничная, 16-1
Площадь общая (кв.м.) 965.4
Описание Сведения об изолированном помещении из ЕГРНИ:
Наименование: помещение котельной;
Назначение: помещение коммунального хозяйства;
Примечание: составными частями изолированного помещения являются 9 дымовых труб.
Право собственности: ООО «ЭКО-Натуральные продукты» (деятельность прекращена в результате реорганизации).
Инвентарный номер 250/D-36952
Должник: ООО «Айронсайд»
Обременения: Ипотека, запрет совершения регистрационных действий судебного исполнителя.
Осмотр объекта
Участник электронных торгов обязан до начала электронных торгов осмотреть предмет торгов ( п.2.4.3 Регламента)
Контактное лицо: Специалисты по продаже
Контакты: +375292117981
Организатор торгов
Наименование Республиканское унитарное предприятие по оказанию услуг «БелЮрОбеспечение». Витебский филиал
УНП организации 192821149
Контакты организатора аукциона +375292117981, 8 (0212) 48 01 00 (приёмная)
Адрес организатора аукциона 210038 г. Витебск, ул. Терешковой, 9
Email организатора аукциона vitebsk@e-auction.by
Орган принудительного исполнения
Наименование ОПИ УПИ главного управления юстиции Витебского облисполкома
УНП 300002505
Адрес 210015, г. Витебск, ул. Б. Хмельницкого, 10-1
Телефон 8 (0212) 61-40-04
Email upi201@minjust.by
Реквизиты ОПИ УПИ главного управления юстиции Витебского облисполкома, УНП: 300002505, р/c BY73AKBB36429030010372000000 в ОАО «АСБ Беларусбанк», БИК AKBBBY2X
Судебный исполнитель
Ф.И.О. Ильющенков Алексей Александрович
Телефон +375336879145

Вы оказались единственными учатником аукциона

Вам предоставляется возможнсть преобрести лот №2.2025.09.00046 по начальной цене 31 400.00 BYN плюс 5%.

Итоговая стоимость имущества составит: 32 970.00 BYN

Согласен приобрести лот Не согласен приобрести лот

Вам предложено преобрести имущество

В связи с признанием торгов несостоявшимися ввиду неоплаты победителем стоимости лота предлагаем в течение 5 рабочих дней принять решение о приобретении лота №2.2025.09.00046 по вашей последней ставке.

Итоговая стоимость имущества составит: 92 461.00 BYN

Согласен приобрести лот Не согласен приобрести лот


Для участия в аукционе вам нужно оплатить задаток в размере 3 140.00 BYN для участия в аукционе.


Внимание! Вы действительно хотите установить ставку равную 15 000,03 BYN значительно превышающую по отношению к предыдущей на

+10 000,00 BYN


Внимание! Вы действительно хотите установить ставку равную 15 000,03 BYN, значительно превышающую по отношению к предыдущей на

+10 000,00 BYN

Ставка значительно превышает предыдущую ставку. Для подтверждения ставки подтвердите согласие на установку и введите слово "СОГЛАСЕН" в поле ниже:




Забыли пароль? Восcтановить доступ к площадке.


Уважаемый пользователь! В соответствии с Законом Республики Беларусь «О защите персональных данных» для продолжения работы на интернет-сайте e- auction.by просим ознакомиться с Пользовательским соглашением интернет-сайта e-auction.by и выразить согласие на обработку информации о пользователе, в том числе персональных данных.


Для восcтановления доступа вам нужно ввести зарегистрированный почтовый адрес. На указанный вами почтовый адрес будет выслана уникальная ссылка для создания нового пароля.

Вспомнили? Авторизация