pull-icon
logo-mobile
logo-mobile

Гость

Гостевой доступ

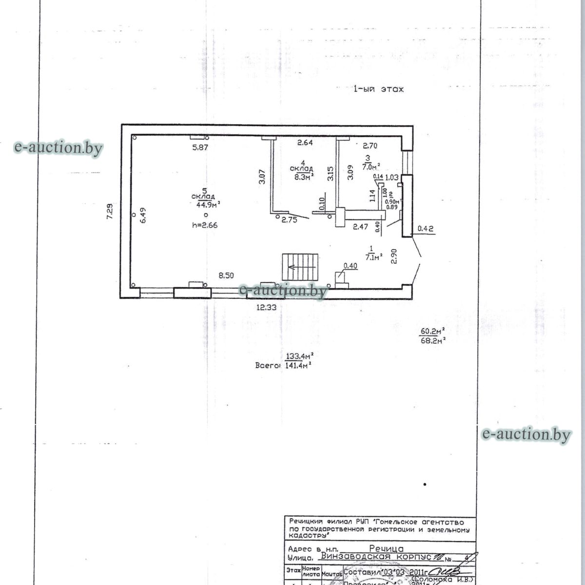
Материальный склад г. Речице, площадью 141.2м²

Информация о предмете торгов
Местоположение имущества Гомельская область, Речицкий р-н, г. Речица, ул. Винзаводская, 4
Площадь общая (кв.м.) 141.2
Описание Сведения о капитальном строении:
Наименование: материальный склад
Назначение: Здание специализированное складов, торговых баз, баз материально-технического снабжения, хранилищ
Составные части и принадлежности: сведения отсутствуют
Примечания: Объект недвижимости - двухэтажное кирпичное здание материального склада.

Сведения о земельном участке:
Кадастровый номер земельного участка, на котором расположено капитальное строение: 324550100001000184 площадью 3.6738 га (право постоянного пользования), расположен в охранных зонах линий электропередачи, площадь 0.3748 га.

Отдельный земельный участок для обслуживания строения не выделен.
Инвентарный номер 340/C-293591
Должник: Открытое акционерное общество "Гомельский винодельческий завод"
Обременения: Запрет совершения регистрационных действий судебного исполнителя.
Осмотр объекта
Участник электронных торгов обязан до начала электронных торгов осмотреть предмет торгов ( п.2.4.3 Регламента)
Контактное лицо: Специалисты по продаже
Контакты: +375445293915
Организатор торгов
Наименование Гомельский филиал республиканского унитарного предприятия по оказанию услуг "БелЮрОбеспечение"
УНП организации 192821149
Контакты организатора аукциона +375445293915; +375445293912
Адрес организатора аукциона 246007, г. Гомель, ул. Троллейбусная, 6
Email организатора аукциона gomel@e-auction.by
Орган принудительного исполнения
Наименование ОПИ УПИ главного управления юстиции Гомельского облисполкома
УНП 400062755
Адрес 246001, г. Гомель, ул. Фрунзе, 6
Телефон 8 (0232) 510347
Email upi301@minjust.by
Реквизиты ОПИ УПИ главного управления юстиции Гомельского облисполкома, УНП: 400062755, р/c BY37AKBB36429000010333000000 в ОАО «АСБ Беларусбанк», БИК AKBBBY2X
Судебный исполнитель
Ф.И.О. Железняков Сергей Михайлович
Телефон +375445290717

Вы оказались единственными учатником аукциона

Вам предоставляется возможнсть преобрести лот №3.2026.05.00027 по начальной цене 14 800.00 BYN плюс 5%.

Итоговая стоимость имущества составит: 15 540.00 BYN

Согласен приобрести лот Не согласен приобрести лот

Вам предложено преобрести имущество

В связи с признанием торгов несостоявшимися ввиду неоплаты победителем стоимости лота предлагаем в течение 5 рабочих дней принять решение о приобретении лота №3.2026.05.00027 по вашей последней ставке.

Итоговая стоимость имущества составит: 0.00 BYN

Согласен приобрести лот Не согласен приобрести лот


Для участия в аукционе вам нужно оплатить задаток в размере 1 480.00 BYN для участия в аукционе.


Внимание! Вы действительно хотите установить ставку равную 15 000,03 BYN значительно превышающую по отношению к предыдущей на

+10 000,00 BYN


Внимание! Вы действительно хотите установить ставку равную 15 000,03 BYN, значительно превышающую по отношению к предыдущей на

+10 000,00 BYN

Ставка значительно превышает предыдущую ставку. Для подтверждения ставки подтвердите согласие на установку и введите слово "СОГЛАСЕН" в поле ниже:




Забыли пароль? Восcтановить доступ к площадке.


Уважаемый пользователь! В соответствии с Законом Республики Беларусь «О защите персональных данных» для продолжения работы на интернет-сайте e- auction.by просим ознакомиться с Пользовательским соглашением интернет-сайта e-auction.by и выразить согласие на обработку информации о пользователе, в том числе персональных данных.


Для восcтановления доступа вам нужно ввести зарегистрированный почтовый адрес. На указанный вами почтовый адрес будет выслана уникальная ссылка для создания нового пароля.

Вспомнили? Авторизация