pull-icon
logo-mobile
logo-mobile

Гость

Гостевой доступ

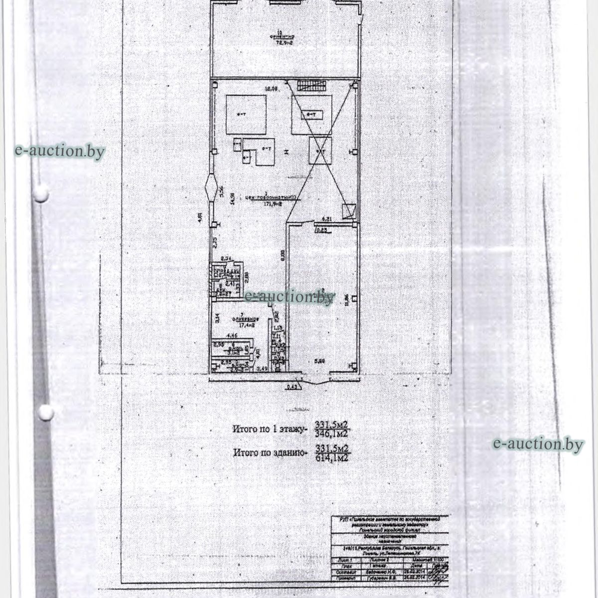
Цех газоочистки в г. Гомеле, площадью 614.1м²

Информация о предмете торгов
Местоположение имущества г. Гомель, ул. Лепешинского, 7К
Площадь общая (кв.м.) 614.1
Описание Сведения о капитальном строении:
Наименование: Цех газоочистки
Назначение: Здание неустановленного назначения
Составные части и принадлежности: кирпичная пристройка.

Сведения о земельном участке:
Кадастровый номер земельного участка, на котором расположено капитальное строение: 340100000002003799 площадью 0.0960 га (право постоянного пользования), расположен на территории, подвергшейся радиоактивному загрязнению в результате катастрофы на Чернобыльской АЭС (в зоне проживания с периодическим радиационным контролем), площадь 0.0960 га.
Целевое назначение земельного участка: Земельный участок для эксплуатации и обслуживания здания специализиррованного иного назначения (цех газоочистки)
Назначение земельного участка в соответствии с единой классификацией назначения объектов недвижимого имущества: Земельный участок для размещения объектов иного назначения.
Инвентарный номер 350/C-78691
Должник: Общество с ограниченной ответственностью "МеталлСтрой СиК"
Осмотр объекта
Участник электронных торгов обязан до начала электронных торгов осмотреть предмет торгов ( п.2.4.3 Регламента)
Контактное лицо: Специалисты по продаже
Контакты: +375445293915
Организатор торгов
Наименование Гомельский филиал республиканского унитарного предприятия по оказанию услуг "БелЮрОбеспечение"
УНП организации 192821149
Контакты организатора аукциона +375445293915; +375445293912
Адрес организатора аукциона 246007, г. Гомель, ул. Троллейбусная, 6
Email организатора аукциона gomel@e-auction.by
Орган принудительного исполнения
Наименование ОПИ УПИ главного управления юстиции Гомельского облисполкома
УНП 400062755
Адрес 246001, г. Гомель, ул. Фрунзе, 6
Телефон 8 (0232) 510347
Email upi301@minjust.by
Реквизиты ОПИ УПИ главного управления юстиции Гомельского облисполкома, УНП: 400062755, р/c BY37AKBB36429000010333000000 в ОАО «АСБ Беларусбанк», БИК AKBBBY2X
Судебный исполнитель
Ф.И.О. Клепча Владимир Андреевич
Телефон +375445290731

Вы оказались единственными учатником аукциона

Вам предоставляется возможнсть преобрести лот №3.2026.05.00046 по начальной цене 50 720.00 BYN плюс 5%.

Итоговая стоимость имущества составит: 53 256.00 BYN

Согласен приобрести лот Не согласен приобрести лот

Вам предложено преобрести имущество

В связи с признанием торгов несостоявшимися ввиду неоплаты победителем стоимости лота предлагаем в течение 5 рабочих дней принять решение о приобретении лота №3.2026.05.00046 по вашей последней ставке.

Итоговая стоимость имущества составит: 0.00 BYN

Согласен приобрести лот Не согласен приобрести лот


Для участия в аукционе вам нужно оплатить задаток в размере 5 072.00 BYN для участия в аукционе.


Внимание! Вы действительно хотите установить ставку равную 15 000,03 BYN значительно превышающую по отношению к предыдущей на

+10 000,00 BYN


Внимание! Вы действительно хотите установить ставку равную 15 000,03 BYN, значительно превышающую по отношению к предыдущей на

+10 000,00 BYN

Ставка значительно превышает предыдущую ставку. Для подтверждения ставки подтвердите согласие на установку и введите слово "СОГЛАСЕН" в поле ниже:




Забыли пароль? Восcтановить доступ к площадке.


Уважаемый пользователь! В соответствии с Законом Республики Беларусь «О защите персональных данных» для продолжения работы на интернет-сайте e- auction.by просим ознакомиться с Пользовательским соглашением интернет-сайта e-auction.by и выразить согласие на обработку информации о пользователе, в том числе персональных данных.


Для восcтановления доступа вам нужно ввести зарегистрированный почтовый адрес. На указанный вами почтовый адрес будет выслана уникальная ссылка для создания нового пароля.

Вспомнили? Авторизация