pull-icon
logo-mobile
logo-mobile

Гость

Гостевой доступ

Комплекс недвижимого имущества в д. Новая Антоновка (Калинковичский район)

Информация о предмете торгов
Местоположение имущества Гомельская область, Калинковичский р-н, Горбовичский с/с, д.Новая Антоновка
Описание Лот включает в себя 24 капитальных строения и 1 изолированное помещение, принадлежащих должнику на праве хозяйственного ведения:
Сведения из ЕГРНИ:

1. Инвентарный номер: 333/C-145862;
Адрес (местоположение): Гомельская обл., Калинковичский р-н, Горбовичский с/с, д.Новая Антоновка;
Общая площадь (протяженность): 212.0;
Наименование: Котельная;
Назначение: Здание специализированное коммунального хозяйства;
Составные части и принадлежности: сведения отсутствуют.

Кадастровый номер земельного участка, на котором расположено капитальное строение: 322380401101000002, площадью 43.0155 га (Право постоянного пользования).
Отдельный земельный участок для обслуживания капитального строения не выделен.


2. Инвентарный номер: 333/C-145906;
Адрес (местоположение): Гомельская обл., Калинковичский р-н, Горбовичский с/с, д.Новая Антоновка;
Общая площадь (протяженность): 708.0;
Наименование: Материальный склад;
Назначение: Здание специализированное складов, торговых баз, баз материально-технического снабжения, хранилищ;
Составные части и принадлежности: сведения отсутствуют.

Кадастровый номер земельного участка, на котором расположено капитальное строение: 322380401101000002, площадью 43.0155 га (Право постоянного пользования).
Отдельный земельный участок для обслуживания капитального строения не выделен.

3. Инвентарный номер: 333/C-145842;
Адрес (местоположение): Гомельская обл., Калинковичский р-н, Горбовичский с/с, д.Новая Антоновка;
Общая площадь (протяженность): 103.0;
Наименование: Здание бункер;
Назначение: Здание специализированное иного назначения;
Составные части и принадлежности: сведения отсутствуют.

Кадастровый номер земельного участка, на котором расположено капитальное строение: 322380401101000002, площадью 43.0155 га (Право постоянного пользования).
Отдельный земельный участок для обслуживания капитального строения не выделен.

4. Инвентарный номер: 333/C-145843;
Адрес (местоположение): Гомельская обл., Калинковичский р-н, Горбовичский с/с, д.Новая Антоновка;
Общая площадь (протяженность): 75.0;
Наименование: Здание бункер;
Назначение: Здание специализированное иного назначения;
Составные части и принадлежности: сведения отсутствуют.

Кадастровый номер земельного участка, на котором расположено капитальное строение: 322380401101000002, площадью 43.0155 га (Право постоянного пользования).
Отдельный земельный участок для обслуживания капитального строения не выделен.

5. Инвентарный номер: 333/C-145904;
Адрес (местоположение): Гомельская обл., Калинковичский р-н, Горбовичский с/с, д.Новая Антоновка;
Общая площадь (протяженность): 557.0;
Наименование: Кормокухня;
Назначение: Здание специализированное иного назначения;
Составные части и принадлежности: пристройка,щитовая.

Кадастровый номер земельного участка, на котором расположено капитальное строение: 322380401101000002, площадью 43.0155 га (Право постоянного пользования).
Отдельный земельный участок для обслуживания капитального строения не выделен.

6. Инвентарный номер: 333/D-20264;
Адрес: Гомельская обл., Калинковичский р-н, Горбовичский с/с, д. Новая Антоновка, ул. Дружбы,3-1;
Общая площадь (кв.м): 38.4;
Наименование: Производственное помещение на первом этаже в трёхэтажном кирпичном жилом доме;
Общая площадь - 38.42 кв. м. , общая площадь на основании СНБ 3.02.04 - 03 " Жилые здания " - 41.15 кв. м.;
Назначение: Производственное помещение.

7. Инвентарный номер: 333/C-102502;
Адрес (местоположение): Гомельская обл., Калинковичский р-н, Горбовичский с/с, 14/21;
Общая площадь (протяженность): 126.2;
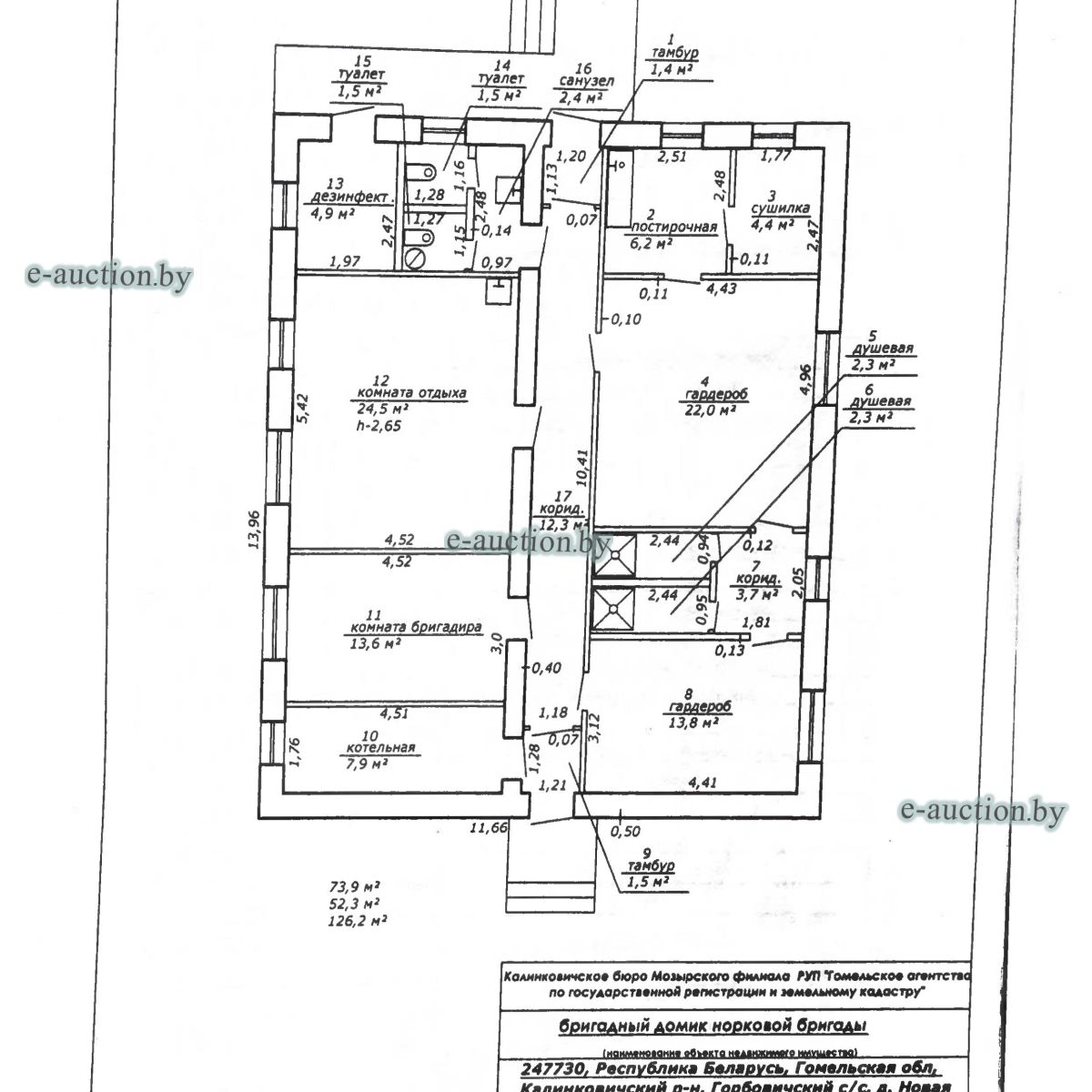
Наименование: Бригадный домик норковой бригады;
Назначение: Здание административно-хозяйственное;
Составные части и принадлежности: Два крыльца.

Кадастровый номер земельного участка, на котором расположено капитальное строение: 322380401101000002, площадью 43.0155 га (Право постоянного пользования).
Отдельный земельный участок для обслуживания капитального строения не выделен.

8. Инвентарный номер: 333/C-26;
Адрес (местоположение): Гомельская обл., Калинковичский р-н, Горбовичский с/с, 14;
Общая площадь (протяженность): 1605.2;
Наименование: Здание;
Назначение: Здание нежилое;
Составные части и принадлежности: здание одноэтажное кирпичное.

Кадастровый номер земельного участка, на котором расположено капитальное строение: 322380401101000002, площадью 43.0155 га (Право постоянного пользования).
Отдельный земельный участок для обслуживания капитального строения не выделен.

9. Инвентарный номер: 333/C-16069;
Адрес (местоположение): Гомельская обл., Калинковичский р-н, Горбовичский с/с, 14/6;
Общая площадь (протяженность): 677.3;
Наименование: Здание;
Назначение: Здание нежилое;
Составные части и принадлежности: здание одноэтажное кирпичное.

Кадастровый номер земельного участка, на котором расположено капитальное строение: 322380401101000002, площадью 43.0155 га (Право постоянного пользования).
Отдельный земельный участок для обслуживания капитального строения не выделен.

10. Инвентарный номер: 333/C-27;
Адрес (местоположение): Гомельская обл., Калинковичский р-н, Горбовичский с/с, 14/2;
Общая площадь (протяженность): 571.8;
Наименование: Здание;
Назначение: Здание нежилое;
Составные части и принадлежности: здание одноэтажное ( материал стен - репор).

Кадастровый номер земельного участка, на котором расположено капитальное строение: 322380401101000002, площадью 43.0155 га (Право постоянного пользования).
Отдельный земельный участок для обслуживания капитального строения не выделен.

11. Инвентарный номер: 333/C-25;
Адрес (местоположение): Гомельская обл., Калинковичский р-н, Горбовичский с/с, 14/3;
Общая площадь (протяженность): 1087.6;
Наименование: Здание;
Назначение: Здание нежилое;
Составные части и принадлежности: здание одноэтажное кирпичное.

Кадастровый номер земельного участка, на котором расположено капитальное строение: 322380401101000002, площадью 43.0155 га (Право постоянного пользования).
Отдельный земельный участок для обслуживания капитального строения не выделен.

12. Инвентарный номер: 333/C-25142;
Адрес (местоположение): Гомельская обл., Калинковичский р-н, Горбовичский с/с, 14/14;
Общая площадь (протяженность): 1153.3;
Наименование: Здание деревообрабатывающего цеха;
Назначение: Здание нежилое;
Составные части и принадлежности: Здание деревообрабатывающего цеха одноэтажное кирпичное.

Кадастровый номер земельного участка, на котором расположено капитальное строение: 322380401101000002, площадью 43.0155 га (Право постоянного пользования).
Отдельный земельный участок для обслуживания капитального строения не выделен.

13. Инвентарный номер: 333/C-146146;
Адрес (местоположение): Гомельская обл., Калинковичский р-н, Горбовичский с/с, д.Новая Антоновка;
Общая площадь (протяженность): 382.0;
Наименование: Здание гаража на 7 автомашин;
Назначение: Здание специализированное автомобильного транспорта;
Составные части и принадлежности: сведения отсутствуют.

Кадастровый номер земельного участка, на котором расположено капитальное строение: 322380401101000002, площадью 43.0155 га (Право постоянного пользования).
Отдельный земельный участок для обслуживания капитального строения не выделен.

14. Инвентарный номер: 333/C-16992;
Адрес (местоположение): Гомельская обл., Калинковичский р-н, Горбовичский с/с, д.Новая Антоновка;
Общая площадь (протяженность): 959.8;
Наименование: здание;
Назначение: Здание нежилое;
Составные части и принадлежности: здание хозпостройки одноэтажное кирпичное.

Кадастровый номер земельного участка, на котором расположено капитальное строение: 322380401101000011, площадью 0.4438 га (Право постоянного пользования).
Отдельный земельный участок для обслуживания капитального строения не выделен.


15. Инвентарный номер: 333/C-16993;
Адрес (местоположение): Гомельская обл., Калинковичский р-н, Горбовичский с/с, д. Новая Антоновка;
Общая площадь (протяженность): 465.5;
Наименование: Здание;
Назначение: Здание неустановленного назначения;
Составные части и принадлежности: здание хозпостройки одноэтажное кирпитчное.

Кадастровый номер земельного участка, на котором расположено капитальное строение: 322380401101000011, площадью 0.4438 га (Право постоянного пользования).
Отдельный земельный участок для обслуживания капитального строения не выделен.

16. Инвентарный номер: 333/C-146144;
Адрес (местоположение): Гомельская обл., Калинковичский р-н, Горбовичский с/с, д.Новая Антоновка;
Общая площадь (протяженность): 262.0;
Наименование: Здание ветаптеки;
Назначение: Здание специализированное розничной торговли;
Составные части и принадлежности: сведения отсутствуют.

Кадастровый номер земельного участка, на котором расположено капитальное строение: 322380401101000002, площадью 43.0155 га (Право постоянного пользования).
Отдельный земельный участок для обслуживания капитального строения не выделен.

17. Инвентарный номер: 333/C-146143;
Адрес (местоположение): Гомельская обл., Калинковичский р-н, Горбовичский с/с, д. Новая Антоновка;
Общая площадь (протяженность): 163.0;
Наименование: Здание конторы;
Назначение: Здание административно-хозяйственное;
Составные части и принадлежности: Сени.

Кадастровый номер земельного участка, на котором расположено капитальное строение: 322380401101000001, площадью 0.0499 га (Право постоянного пользования).

18. Инвентарный номер: 333/C-145882;
Адрес (местоположение): Гомельская обл., Калинковичский р-н, Горбовичский с/с, д.Новая Антоновка;
Общая площадь (протяженность): 504.0;
Наименование: Помещение компрессорной;
Назначение: Здание специализированное иного назначения;
Составные части и принадлежности: сени.

Кадастровый номер земельного участка, на котором расположено капитальное строение: 322380401101000002, площадью 43.0155 га (Право постоянного пользования).
Отдельный земельный участок для обслуживания капитального строения не выделен.

19. Инвентарный номер: 333/C-145863;
Адрес (местоположение): Гомельская обл., Калинковичский р-н, Горбовичский с/с, д.Новая Антоновка;
Общая площадь (протяженность): 364.0;
Наименование: Здание пункта технического обслуживания;
Назначение: Здание специализированное иного назначения;
Составные части и принадлежности: сведения отсутствуют.

Кадастровый номер земельного участка, на котором расположено капитальное строение: 322380401101000002, площадью 43.0155 га (Право постоянного пользования).
Отдельный земельный участок для обслуживания капитального строения не выделен.

20. Инвентарный номер: 333/C-145905;
Адрес (местоположение): Гомельская обл., Калинковичский р-н, Горбовичский с/с, д.Новая Антоновка;
Общая площадь (протяженность): 42.0;
Наименование: Здание бригадного дома №9;
Назначение: Здание специализированное иного назначения;
Составные части и принадлежности: сведения отсутствуют.

Кадастровый номер земельного участка, на котором расположено капитальное строение: 322380401101000002, площадью 43.0155 га (Право постоянного пользования).
Отдельный земельный участок для обслуживания капитального строения не выделен.

21. Инвентарный номер: 333/C-145903;
Адрес (местоположение): Гомельская обл., Калинковичский р-н, Горбовичский с/с, д.Новая Антоновка;
Общая площадь (протяженность): 315.0;
Наименование: Здание склада сухих кормов;
Назначение: Здание специализированное иного назначения;
Составные части и принадлежности: сведения отсутствуют.

Кадастровый номер земельного участка, на котором расположено капитальное строение: 322380401101000002, площадью 43.0155 га (Право постоянного пользования).
Отдельный земельный участок для обслуживания капитального строения не выделен.

22. Инвентарный номер: 333/C-160483;
Адрес (местоположение): Гомельская обл., Калинковичский р-н, Горбовичский с/с, д. Новая Антоновка, ул. Дружбы, 5А;
Общая площадь (протяженность): 63.9;
Наименование: Канализационно-насосная станция;
Назначение: Сооружение специализированное коммунального хозяйства;
Составные части и принадлежности: А-Канализационно-насосная станция.

Кадастровый номер земельного участка, на котором расположено капитальное строение: 322380401101000124, площадью 0.0082 га (Право аренды).


23. Инвентарный номер: 333/C-160482;
Адрес (местоположение): Гомельская обл., Калинковичский р-н, Горбовичский с/с, д. Новая Антоновка, ул. Кольцевая, 18А;
Общая площадь (протяженность): 64.8;
Наименование: Канализационно-насосная станция;
Назначение: Сооружение специализированное коммунального хозяйства;
Составные части и принадлежности: А-Канализационно-насосная станция.

Кадастровый номер земельного участка, на котором расположено капитальное строение: 322380401101000125, площадью 0.0086 га (Право аренды).

24. Инвентарный номер: 333/C-157944;
Адрес (местоположение): Гомельская обл., Калинковичский р-н, Горбовичский с/с, д. Новая Антоновка;
Общая площадь (протяженность): 5381.3;
Наименование: Канализационные сети;
Назначение: Сооружение специализированное коммунального хозяйства;
Составные части и принадлежности: сведения отсутствуют.

Кадастровый номер земельного участка, на котором расположено капитальное строение: 322380401101000002, площадью 43.0155 га (Право постоянного пользования).
Отдельный земельный участок для обслуживания капитального строения не выделен.

25. Инвентарный номер: 333/C-157943;
Адрес (местоположение): Гомельская обл., Калинковичский р-н, Горбовичский с/с;
Общая площадь (протяженность): 32595.0;
Наименование: Очистные сооружения;
Назначение: Сооружение специализированное коммунального хозяйства;
Составные части и принадлежности: Очистное сооружение, действующие поля фильтрации, действующие поля фильтрации, действующие поля фильтрации, действующие поля фильтрации, лоток, камера-отстойник.

Кадастровый номер земельного участка, на котором расположено капитальное строение: 322380401101000002, площадью 43.0155 га (Право постоянного пользования).
Отдельный земельный участок для обслуживания капитального строения не выделен.










Должник: Производственное унитарное предприятие "Белкоопмех"
Обременения: Запрет совершения регистрационных действий судебного исполнителя.
Осмотр объекта
Участник электронных торгов обязан до начала электронных торгов осмотреть предмет торгов ( п.2.4.3 Регламента)
Контактное лицо: Управление оценки и реализации имущества
Контакты: +375445293933
Организатор торгов
Наименование Республиканское унитарное предприятие по оказанию услуг "БелЮрОбеспечение"
УНП организации УНП 192821149
Контакты организатора аукциона +375445293933
Адрес организатора аукциона 220069, г. Минск, пр-т Дзержинского, 1Б
Email организатора аукциона minsk@e-auction.by
Орган принудительного исполнения
Наименование ОПИ УПИ главного управления юстиции Мингорисполкома
УНП 100223493
Адрес 220004, г. Минск, ул. Коллекторная, 3
Телефон +375 (17) 363-11-44
Email upi701@minjust.by
Реквизиты ОПИ УПИ главного управления юстиции Мингорисполкома, УНП: 100223493, р/c BY56AKBB36429000024450000000 в ОАО «АСБ Беларусбанк», БИК AKBBBY2X
Судебный исполнитель
Ф.И.О. Петрукович Алексей Константинович
Телефон +375445292509

Вы оказались единственными учатником аукциона

Вам предоставляется возможнсть преобрести лот №7.2025.12.00032 по начальной цене 1 445 760.00 BYN плюс 5%.

Итоговая стоимость имущества составит: 1 518 048.00 BYN

Согласен приобрести лот Не согласен приобрести лот

Вам предложено преобрести имущество

В связи с признанием торгов несостоявшимися ввиду неоплаты победителем стоимости лота предлагаем в течение 5 рабочих дней принять решение о приобретении лота №7.2025.12.00032 по вашей последней ставке.

Итоговая стоимость имущества составит: 0.00 BYN

Согласен приобрести лот Не согласен приобрести лот


Для участия в аукционе вам нужно оплатить задаток в размере 144 576.00 BYN для участия в аукционе.


Внимание! Вы действительно хотите установить ставку равную 15 000,03 BYN значительно превышающую по отношению к предыдущей на

+10 000,00 BYN


Внимание! Вы действительно хотите установить ставку равную 15 000,03 BYN, значительно превышающую по отношению к предыдущей на

+10 000,00 BYN

Ставка значительно превышает предыдущую ставку. Для подтверждения ставки подтвердите согласие на установку и введите слово "СОГЛАСЕН" в поле ниже:




Забыли пароль? Восcтановить доступ к площадке.


Уважаемый пользователь! В соответствии с Законом Республики Беларусь «О защите персональных данных» для продолжения работы на интернет-сайте e- auction.by просим ознакомиться с Пользовательским соглашением интернет-сайта e-auction.by и выразить согласие на обработку информации о пользователе, в том числе персональных данных.


Для восcтановления доступа вам нужно ввести зарегистрированный почтовый адрес. На указанный вами почтовый адрес будет выслана уникальная ссылка для создания нового пароля.

Вспомнили? Авторизация