pull-icon
logo-mobile
logo-mobile

Гость

Гостевой доступ

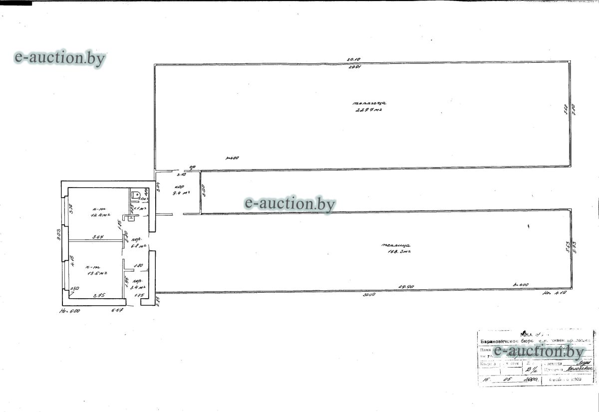
Цветочная теплица в г. Барановичи, площадью 450 м²

Информация о предмете торгов
Местоположение имущества Брестская область, Барановичский р-н, г. Барановичи, ул. Фабричная, 7Б/8
Площадь общая (кв.м.) 450
Описание Сведения о капитальном строении из ЕГРНИ:
Наименование: цветочная теплица;
Назначение: здание специализированное иного назначения;
Составные части и принадлежности: одноэтажное кирпично-стеклянное здание цветочной теплицы с кирпичным сараем, бетонным погребом.
Принадлежит должнику на праве собственности.

Расположено на земельном участке с кад. № 141000000006002869 площадью 1.6775 га (право аренды: доля - 18144/19974). Отдельный участок под обслуживание капитального строения не выделен.
Целевое назначение земельного участка: для строительства и обслуживания цветочной теплицы, прачечной и сооружений.
Назначение земельного участка в соответствии с единой классификацией назначения объектов недвижимого имущества: земельный участок для размещения объектов иного назначения.
Ограничения (обременения) прав на земельные участки, расположенные на природных территориях, подлежащих специальной охране (в зоне санитарной охраны источников питьевого водоснабжения централизованных систем питьевого водоснабжения), площадь 1.6775 га.
Ограничения (обременения) прав на земельные участки, расположенные в охранных зонах объектов газораспределительной системы (газопровод среднего давления), площадь 0.0088 га.
Ограничения (обременения) прав на земельные участки, расположенные в охранных зонах объектов газораспределительной системы (газопровод высокого давления), площадь 0.0159 га.
Инвентарный номер 110/C-86233
Должник: ОАО «Барановичское производственное хлопчатобумажное объединение»
Обременения: Арест, запрет совершения регистрационных действий судебного исполнителя.
Осмотр объекта
Участник электронных торгов обязан до начала электронных торгов осмотреть предмет торгов ( п.2.4.3 Регламента)
Контактное лицо: Управление оценки и реализации имущества
Контакты: +375445293933
Организатор торгов
Наименование Республиканское унитарное предприятие по оказанию услуг «БелЮрОбеспечение»
УНП организации 192821149
Контакты организатора аукциона +375445293933
Адрес организатора аукциона 220069, г. Минск, пр-т Дзержинского, 1Б
Email организатора аукциона minsk@e-auction.by
Орган принудительного исполнения
Наименование ГУПИ Министерства юстиции
УНП 100619144
Адрес 220004, г.Минск, ул.Коллекторная, 10
Телефон 8 (017) 200-98-97
Email kanc@minjust.by
Реквизиты ГУПИ Министерства юстиции, УНП: 100619144, р/c BY67AKBB36429000023020000000 в ОАО «АСБ Беларусбанк», БИК AKBBBY2X
Судебный исполнитель
Ф.И.О. Гаевская Ангелина Геннадьевна
Телефон +375172009114

Вы оказались единственными учатником аукциона

Вам предоставляется возможнсть преобрести лот №8.2025.11.00001 по начальной цене 8 160.00 BYN плюс 5%.

Итоговая стоимость имущества составит: 8 568.00 BYN

Согласен приобрести лот Не согласен приобрести лот

Вам предложено преобрести имущество

В связи с признанием торгов несостоявшимися ввиду неоплаты победителем стоимости лота предлагаем в течение 5 рабочих дней принять решение о приобретении лота №8.2025.11.00001 по вашей последней ставке.

Итоговая стоимость имущества составит: 0.00 BYN

Согласен приобрести лот Не согласен приобрести лот


Для участия в аукционе вам нужно оплатить задаток в размере 816.00 BYN для участия в аукционе.


Внимание! Вы действительно хотите установить ставку равную 15 000,03 BYN значительно превышающую по отношению к предыдущей на

+10 000,00 BYN


Внимание! Вы действительно хотите установить ставку равную 15 000,03 BYN, значительно превышающую по отношению к предыдущей на

+10 000,00 BYN

Ставка значительно превышает предыдущую ставку. Для подтверждения ставки подтвердите согласие на установку и введите слово "СОГЛАСЕН" в поле ниже:




Забыли пароль? Восcтановить доступ к площадке.


Уважаемый пользователь! В соответствии с Законом Республики Беларусь «О защите персональных данных» для продолжения работы на интернет-сайте e- auction.by просим ознакомиться с Пользовательским соглашением интернет-сайта e-auction.by и выразить согласие на обработку информации о пользователе, в том числе персональных данных.


Для восcтановления доступа вам нужно ввести зарегистрированный почтовый адрес. На указанный вами почтовый адрес будет выслана уникальная ссылка для создания нового пароля.

Вспомнили? Авторизация