pull-icon
logo-mobile
logo-mobile

Гость

Гостевой доступ

Жилой дом в д. Борщовка (Добрушский район)

Информация о предмете торгов
Местоположение имущества Гомельская область, Добрушский р-н, д. Борщовка, ул. Советская, 20
Описание Сведения о капитальном строении:
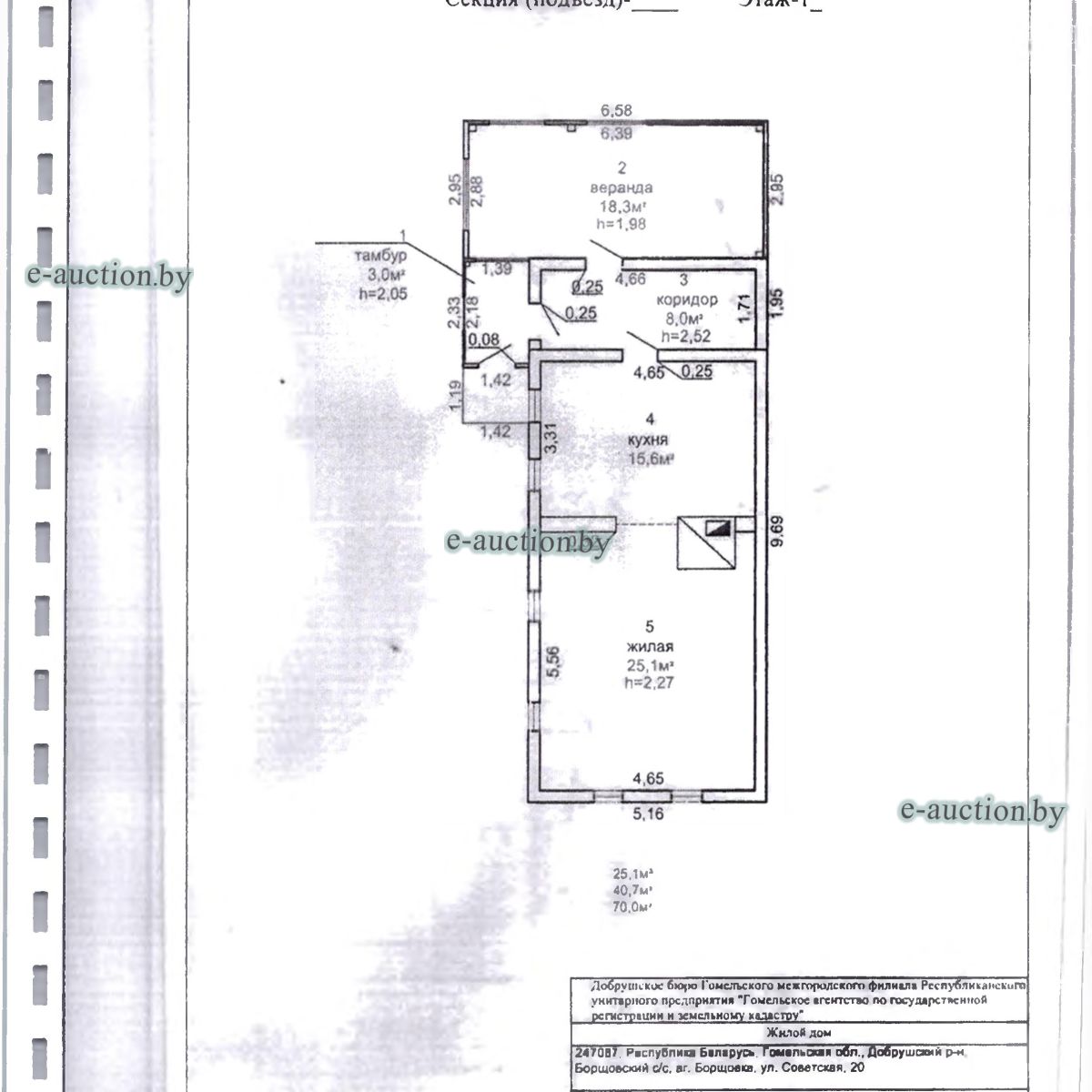
Наименование: Одноквартирный жилой дом
Назначение: Здание одноквартирного жилого дома
Составные части и принадлежности: одноэтажный бревенчатый с тремя верандами жилой дом с надворными постройками: погребом, четырьмя сараями

Сведения о земельном участке:
Кадастровый номер земельного участка, на котором расположено капитальное строение: 321280400601000072 площадью 0.2500 га (право пожизненного наследуемого владения).
Целевое назначение земельного участка: Земельный участок для размещения объектов усадебной застройки(строительства и обслуживания жилого дома) с объектами обслуживания
Назначение земельного участка в соответствии с единой классификацией назначения объектов недвижимого имущества: Земельный участок для размещения объектов усадебной застройки (строительства и обслуживания одноквартирного(блокированного) жилого дома) с объектами обслуживания.

У строения имеется ведомость технических характеристик согласно которой выявлены признаки самовольного строительства или несоответствия фактического состояния объекта недвижимого имущества данным реестра характеристик и отсутствует решение о принятия самовольной постройки в эксплуатацию и ее государственной регистрации в установленном порядке либо решение о согласовании самовольных переустройства и (или) перепланировки жилого помещения, нежилого помещения в жилом доме (Реконструкция двух сараев). Общая площадь жилы помещений согласно ведомости составляет 40,7 кв.м.
Инвентарный номер 311/C-2909
Должник: Головацкая Алеся Павловна
Обременения: Запрет совершения регистрационных действий судебного исполнителя. Количество зарегистрированных по месту жительства 7 из них 6 несовершеннолетние.
Осмотр объекта
Участник электронных торгов обязан до начала электронных торгов осмотреть предмет торгов ( п.2.4.3 Регламента)
Контактное лицо: Специалисты по продаже
Контакты: +375445293912
Организатор торгов
Наименование Гомельский филиал республиканского унитарного предприятия по оказанию услуг "БелЮрОбеспечение"
УНП организации 192821149
Контакты организатора аукциона +375445293917; +375445293912
Адрес организатора аукциона 246007, г. Гомель, ул. Троллейбусная, 6
Email организатора аукциона gomel@e-auction.by
Орган принудительного исполнения
Наименование ОПИ Добрушского р-на
УНП 400062755
Адрес 247054, г. Добруш, ул. Советская, 2
Телефон 8 (02333) 3-10-86
Email opi310@minjust.by
Реквизиты ОПИ Добрушского р-на, УНП: 400062755, р/c BY46AKBB36429000090643000000 в ОАО «АСБ Беларусбанк», БИК AKBBBY2X
Судебный исполнитель
Ф.И.О. Протченко Марина Валерьевна
Телефон +375 44 529 08 30

Вы оказались единственными учатником аукциона

Вам предоставляется возможнсть преобрести лот №3.2025.06.00026 по начальной цене 8 200.00 BYN плюс 5%.

Итоговая стоимость имущества составит: 8 610.00 BYN

Согласен приобрести лот Не согласен приобрести лот

Вам предложено преобрести имущество

В связи с признанием торгов несостоявшимися ввиду неоплаты победителем стоимости лота предлагаем в течение 5 рабочих дней принять решение о приобретении лота №3.2025.06.00026 по вашей последней ставке.

Итоговая стоимость имущества составит: 0.00 BYN

Согласен приобрести лот Не согласен приобрести лот


Для участия в аукционе вам нужно оплатить задаток в размере 820.00 BYN для участия в аукционе.


Внимание! Вы действительно хотите установить ставку равную 15 000,03 BYN значительно превышающую по отношению к предыдущей на

+10 000,00 BYN


Внимание! Вы действительно хотите установить ставку равную 15 000,03 BYN, значительно превышающую по отношению к предыдущей на

+10 000,00 BYN

Ставка значительно превышает предыдущую ставку. Для подтверждения ставки подтвердите согласие на установку и введите слово "СОГЛАСЕН" в поле ниже:




Забыли пароль? Восcтановить доступ к площадке.


Уважаемый пользователь! В соответствии с Законом Республики Беларусь «О защите персональных данных» для продолжения работы на интернет-сайте e- auction.by просим ознакомиться с Пользовательским соглашением интернет-сайта e-auction.by и выразить согласие на обработку информации о пользователе, в том числе персональных данных.


Для восcтановления доступа вам нужно ввести зарегистрированный почтовый адрес. На указанный вами почтовый адрес будет выслана уникальная ссылка для создания нового пароля.

Вспомнили? Авторизация