pull-icon
logo-mobile
logo-mobile

Гость

Гостевой доступ

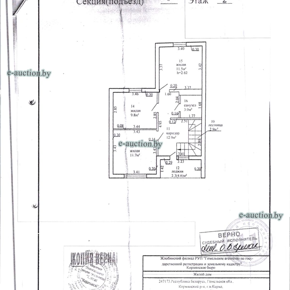
Жилой дом в гп Корма

Информация о предмете торгов
Местоположение имущества Гомельская область, Кормянский р-н, гп Корма, ул. Молодежная, 21
Описание Строение не зарегистрировано.

Имеется ведомость технических характеристик в соответствии с которой в едином государственном регистре недвижимого имущества, прав на него и сделок с ним отсутствуют сведения о земельных участках предоставленных для строительства и (или) обслуживания капитальных строений (зданий, сооружений), незавершенных законсервированных капитальных строений, квартир в блокированном жилом доме.
Строка "Инвентарный номер" не заполнена по причине его отсутствия на момент составления итогового технического документа.
Должник: Коммунальное сельскохозяйственное унитарное предприятие "Совхоз "Кормянский"
Осмотр объекта
Участник электронных торгов обязан до начала электронных торгов осмотреть предмет торгов ( п.2.4.3 Регламента)
Контактное лицо: Специалисты по продаже
Контакты: +375445293915
Организатор торгов
Наименование Гомельский филиал республиканского унитарного предприятия по оказанию услуг "БелЮрОбеспечение"
УНП организации 192821149
Контакты организатора аукциона +375445293915; +375445293912
Адрес организатора аукциона 246007, г. Гомель, ул. Троллейбусная, 6
Email организатора аукциона gomel@e-auction.by
Орган принудительного исполнения
Наименование ОПИ УПИ главного управления юстиции Гомельского облисполкома
УНП 400062755
Адрес 246001, г. Гомель, ул. Фрунзе, 6
Телефон 8 (0232) 510347
Email upi301@minjust.by
Реквизиты ОПИ УПИ главного управления юстиции Гомельского облисполкома, УНП: 400062755, р/c BY37AKBB36429000010333000000 в ОАО «АСБ Беларусбанк», БИК AKBBBY2X
Судебный исполнитель
Ф.И.О. Ермак Ольга Валерьевна
Телефон +375445290782

Вы оказались единственными учатником аукциона

Вам предоставляется возможнсть преобрести лот №3.2026.03.00118 по начальной цене 5 960.00 BYN плюс 5%.

Итоговая стоимость имущества составит: 6 258.00 BYN

Согласен приобрести лот Не согласен приобрести лот

Вам предложено преобрести имущество

В связи с признанием торгов несостоявшимися ввиду неоплаты победителем стоимости лота предлагаем в течение 5 рабочих дней принять решение о приобретении лота №3.2026.03.00118 по вашей последней ставке.

Итоговая стоимость имущества составит: 0.00 BYN

Согласен приобрести лот Не согласен приобрести лот


Для участия в аукционе вам нужно оплатить задаток в размере 596.00 BYN для участия в аукционе.


Внимание! Вы действительно хотите установить ставку равную 15 000,03 BYN значительно превышающую по отношению к предыдущей на

+10 000,00 BYN


Внимание! Вы действительно хотите установить ставку равную 15 000,03 BYN, значительно превышающую по отношению к предыдущей на

+10 000,00 BYN

Ставка значительно превышает предыдущую ставку. Для подтверждения ставки подтвердите согласие на установку и введите слово "СОГЛАСЕН" в поле ниже:




Забыли пароль? Восcтановить доступ к площадке.


Уважаемый пользователь! В соответствии с Законом Республики Беларусь «О защите персональных данных» для продолжения работы на интернет-сайте e- auction.by просим ознакомиться с Пользовательским соглашением интернет-сайта e-auction.by и выразить согласие на обработку информации о пользователе, в том числе персональных данных.


Для восcтановления доступа вам нужно ввести зарегистрированный почтовый адрес. На указанный вами почтовый адрес будет выслана уникальная ссылка для создания нового пароля.

Вспомнили? Авторизация