pull-icon
logo-mobile
logo-mobile

Гость

Гостевой доступ

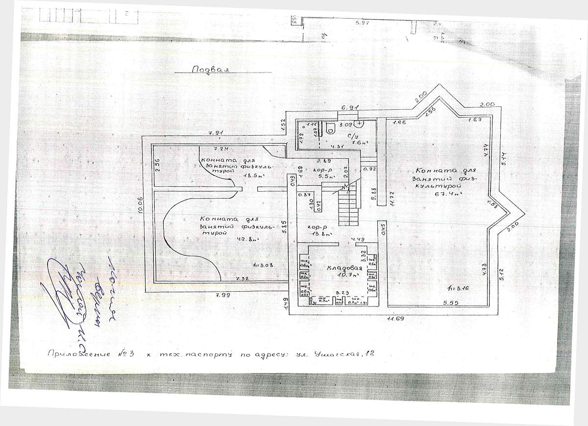
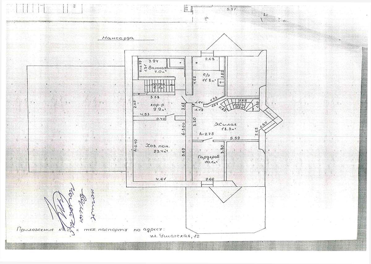
Жилой дом в г. Минске, площадью 388.6 м²

Информация о предмете торгов
Местоположение имущества г. Минск, ул. Ушачская, 12
Площадь общая (кв.м.) 388.6
Описание Лот представляет собой объект недвижимости в составе капитального строения и земельного участка. Принадлежит должнику на праве собственности.
Сведения о капитальном строении:
Наименование: жилой дом;
Назначение: здание одноквартирного жилого дома;
Составные части и принадлежности: двухэтажный каменный жилой дом с подвалом, мансардой, холодной пристройкой, хоз.блоком с мансардой.
Примечания: жилая площадь - 194.5 м², общая площадь жилого помещения - 388.6 м².

Сведения о земельном участке:
Кадастровый номер: 623687806101000250;
Площадь (га): 0.1922;
Целевое назначение земельного участка: строительство и обслуживание жилого дома;
Назначение земельного участка в соответствии с единой классификацией назначения объектов недвижимого имущества: земельный участок для размещения объектов усадебной застройки (строительства и обслуживания одноквартирного (блокированного) жилого дома, обслуживания зарегистрированной организацией по государственной регистрации недвижимого имущества, прав на него и сделок с ним квартиры в блокированном жилом доме).
Третий пояс санитарной охраны водозабора "Новинки", площадь 0.1922 га.
Инвентарный номер 500/C-35700
Должник: Чалей Константин Сергеевич
Обременения: Ипотека, запрет совершения регистрационных действий судебного исполнителя.
Осмотр объекта
Участник электронных торгов обязан до начала электронных торгов осмотреть предмет торгов ( п.2.4.3 Регламента)
Контактное лицо: Управление оценки и реализации имущества
Контакты: +375445293933
Организатор торгов
Наименование Республиканское унитарное предприятие по оказанию услуг «БелЮрОбеспечение»
УНП организации 192821149
Контакты организатора аукциона +375445293933
Адрес организатора аукциона 220069, г. Минск, пр-т Дзержинского, 1Б
Email организатора аукциона minsk@e-auction.by
Орган принудительного исполнения
Наименование ОПИ Центрального р-на г.Минска
УНП 100223493
Адрес 220030, г.Минск, ул. Ульяновская, 3-пом 1Н
Телефон 8 (017) 240-49-70
Email opi710@minjust.by
Реквизиты ОПИ Центрального р-на г.Минска, УНП: 100223493, р/c BY26AKBB36429553622375300000 в ОАО «АСБ Беларусбанк», БИК AKBBBY2X
Судебный исполнитель
Ф.И.О. Петкевич Екатерина Валерьевна
Телефон +375445292644

Вы оказались единственными учатником аукциона

Вам предоставляется возможнсть преобрести лот №7.2025.08.00062 по начальной цене 1 382 095.39 BYN плюс 5%.

Итоговая стоимость имущества составит: 1 451 200.16 BYN

Согласен приобрести лот Не согласен приобрести лот

Вам предложено преобрести имущество

В связи с признанием торгов несостоявшимися ввиду неоплаты победителем стоимости лота предлагаем в течение 5 рабочих дней принять решение о приобретении лота №7.2025.08.00062 по вашей последней ставке.

Итоговая стоимость имущества составит: 0.00 BYN

Согласен приобрести лот Не согласен приобрести лот


Для участия в аукционе вам нужно оплатить задаток в размере 138 209.54 BYN для участия в аукционе.


Внимание! Вы действительно хотите установить ставку равную 15 000,03 BYN значительно превышающую по отношению к предыдущей на

+10 000,00 BYN


Внимание! Вы действительно хотите установить ставку равную 15 000,03 BYN, значительно превышающую по отношению к предыдущей на

+10 000,00 BYN

Ставка значительно превышает предыдущую ставку. Для подтверждения ставки подтвердите согласие на установку и введите слово "СОГЛАСЕН" в поле ниже:




Забыли пароль? Восcтановить доступ к площадке.


Уважаемый пользователь! В соответствии с Законом Республики Беларусь «О защите персональных данных» для продолжения работы на интернет-сайте e- auction.by просим ознакомиться с Пользовательским соглашением интернет-сайта e-auction.by и выразить согласие на обработку информации о пользователе, в том числе персональных данных.


Для восcтановления доступа вам нужно ввести зарегистрированный почтовый адрес. На указанный вами почтовый адрес будет выслана уникальная ссылка для создания нового пароля.

Вспомнили? Авторизация